多富瑞钢结构坡屋面解决方案
钢结构建筑技术相较于传统砖混结构技术,具有更高的抗震性能、更快的施工速度、更轻的自重、更灵活的设计和更长的使用寿命、强度高等优点,在现代建筑中的占比愈发增多。

多富瑞轻质坡屋面系统具有优异的适配性能,可在钢结构坡屋面上轻松施工,同时可以根据业主的不同需求,采用不同的施工方案。

在降雨较少的地区,或对渗漏水不敏感、主要用于遮阳隔热的建筑屋面工程,可采用简单快捷的屋面施工方案。使用钢结构瓦钉,将波形沥青瓦直接固定于钢檩条。相较传统屋面施工方式,该方案可极大缩减施工周期,灵活便捷,同时可降低整体造价。

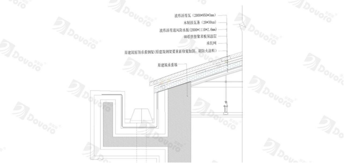
对于民用建筑和渗漏水敏感的建筑屋面,可采用更加全面的施工方案,结合波形沥青瓦、波形沥青防水板、防水卷材等构造,共同形成轻质、防水、隔热的屋面系统。

在钢结构的屋面构造中,波形沥青瓦与波形沥青防水板担负着主要的防水功能,其采用防排结合的设计,可将雨水快速排出屋面,降低渗水概率。对于偶有渗入屋面的雨水,可再次通过波形沥青防水板排出屋面,保障下层保温板的干燥。

波形沥青瓦与波形沥青防水板组成双层屋面构造,独特的双层屋面构造设计,带来的是每平方米瓦下200立方厘米的通风空间,可带走瓦下的热量和潮气,使屋面保持极佳工况。通风设计配合下层保温板构造,不仅为建筑带来舒适居住体验,更能延缓室内温度变化,降低建筑能耗。

在传统屋面系统中,渗漏更多发生于节点接缝位置,使整个屋面系统的防水功能溃于蚁穴。多富瑞通过科学的节点设计,配合脊瓦、沟瓦、边瓦等配套辅材,可加强细节处的防水,提升屋面整体防水性能。


详细技术资料可咨询地区经理
轻质坡屋面系统同时可支持老旧钢结构建筑的改造、平改坡等屋面翻新改造项目。轻质的材料对老旧建筑的屋面荷载不产生压力,干式施工的工艺可最大程度缩短施工周期,减少改造对建筑使用的影响。


详细技术资料可咨询地区经理
多富瑞不仅是屋面材料研发生产商,更为业主及合作伙伴提供全套屋面解决方案。从设计方案优化、成本概算、仓储运输,到售前、售中及售后,均有专业齐全的队伍提供全方位的技术支持,为建筑工程保驾护航。

成为经销商
从设计方案的优化、施工方案和指导、成本概算、仓储和运输、各类配件等,到售前、售中及售后,专业齐全的队伍提供全方位的服务支持。















